Leave a Message

Thank you for your message. I will be in touch with you shortly.

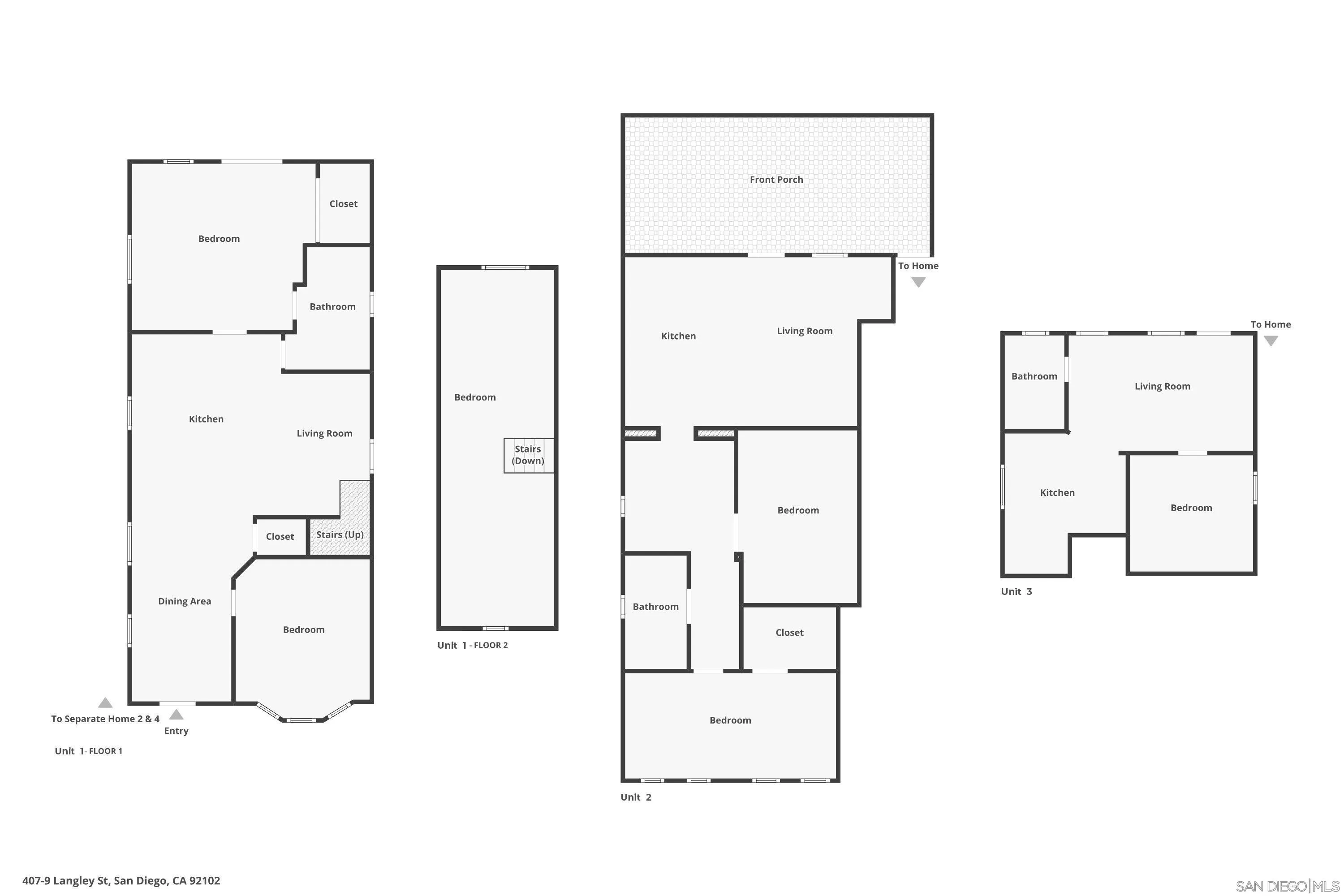
Property Description

Introducing a lucrative investment opportunity in Grant Hill. Located in Transit Priority (TPA) and Sustainable Development (SDA). Ideal for savvy investors, with tenants already in place (leases expire 4/1/24), offering immediate rental income. Zoned RM 2-4. The main house is comprised of unit 1 + bonus unit, with the third unit detached. Units 1 was renovated in 2014, including the roof. of the main house. The bonus unit was renovated in 2016. Panoramic views from the first unit's deck and backyard. Listing price based on tax records of main unit, permits unknown for bonus unit of main house. See confidential remarks. Unit 1 (409): 3 bedrooms, 1 bathroom 1300 est q. ft. Bonus Unit: 1 bedroom, 1 bathroom 1100 est sq. ft. Unit 3 (407): 1 bedroom, 1 bathroom 400 sq. ft. est sq. ft . Don't miss out on this fantastic opportunity to own a cash-flowing property in a prime location.

Overview

Property Status
Sold
Lot Size
0.08 Sq.Ft.
MLS ID
240004022
Property Type
Multi-Family
Year Built
1940

Features & Amenities

Total Area
2,800 Sq.Ft.
Stories
2
Roof
Composition
Air Conditioning
N/K
Security Features
N/K
Sales Price
$875,000

Downloads

407-9 Langley St

Schedule a Tour

I would love to help you see this beautiful home! As a full-service brokerage, I can help you tour. Please submit an offer, and answer questions about the buying process.

Enter a valid email

Thank you

for your interest in 407-9 Langley St, San Diego, CA 92102

back to page
407-9 Langley St
Navigate
407-9 Langley St
explore in 3d

I'm Interested In

407-9 Langley St

or
  • CallKarlee Van Dyke

    License #CA DRE# 02130406

    (619) 639-8407
  • Browse My

    Featured Listings

    • 5358 Raspberry Way Pending

      $799,000

      5358 Raspberry Way, Oceanside, CA 92057

      • 4 Beds
      • 2 Baths
      • 1,344 Sq.Ft.
    • 4060 Huerfano Ave Unit Unit 146 Pending

      $499,000

      4060 Huerfano Ave Unit Unit 146, San Diego, CA 92117

      • 2 Beds
      • 2 Baths
      • 878 Sq.Ft.
    View All

    Follow Me on Instagram